房屋資料 |
案名 | 台北小巨蛋站【 國林光復大樓】大樓 | 案號 | 114黃18075 |
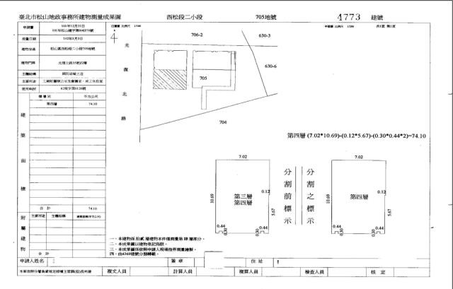
地址 | 台北市松山區光復北路35號4樓<12>台北市松山區光復北路35號4樓<12> | 社區/大樓 | 國林光復大樓 |
---|
最新交易狀態 | 待標中 | 售價 | 售5840萬 |
房屋類型 | 大樓 | 總登記坪數 | 78.33 坪 |
格局 | | 屋齡 | 32年 |
---|
每坪單價 | 74.56萬/坪 | 公設比 | |
---|
車位 | 地下二樓車位,車位係機械式(塔式) | 座向 | |
---|
無障礙環境 | | 法拍屋 | 本物件是法拍屋 拍次 : 第一拍 開標日期 : 114/11/19(三)
|
---|
建物所在樓層 | 4樓/共12樓 | 管理費 | |
---|
管委會 | | 中庭 | |
電梯 | 未知 | 是否為凶宅 | |
300公尺內嫌惡設施 | | 面前道路 | |
面寬 | | 縱深 | |
邊間 | | 房屋銷售來源 | 不動產經紀人/專業仲介 |
---|
房屋特色 | ▲拍賣公告:台北法院 ▲拍賣標的物:台北市松山區光復北路35號4樓<12> ▲【謄本資料】: 建物登記:總坪數78.33坪主建坪45.11坪,公設坪33.22坪 ▲【法院筆錄】: 建號建物現場查封時債務人公司法定代理人在場稱為自用,無出租,無漏水,地震後有小裂痕,結構無受損,故本件拍定後點交。 ▲【生活機能】: ▲【拍次說明】: 標售拍次(目前拍次底價): 第一拍底價:5840萬 第二拍底價: 第三拍底價: 拍賣日期:114/11/19(三) ▲台北∣新北∣桃園∣新竹 ★Houseinfo:http://www.xn--ogt54mdnjqrqpix.tw/ ▲【代標服務】 <過濾案件>追蹤拍賣日期... <評估案件>投標全場陪同及標價最後建議... <包辦交屋>與法院協商現住人交屋事項... <代墊尾款>辦理銀行代墊及投標尾款手續...
※此案件為法拍屋無法看屋,實際狀況以法院筆錄為主。 詳細資訊了解請撥李小姐(02)8260-2416|0986-508652 財欣不動產管理顧份有限公司【統一編號】28306523
|
---|
坪數說明 |
建物登記總坪數 | 78.33 | 土地登記總坪數 | |
---|
主建物坪數 | 45.11 | 停車位坪數 | |
---|
附屬建物坪數 | | 公共設施坪數 | 33.22 |
---|
增建坪數 | |
---|
周邊環境 |
生活機能 | 距交通部公路總局臺北市區監理所步行約5分鐘、松山文創園區步行約10分鐘,社區內有Honda Cars台北松山店(81號)、TOYOTA光復服務廠、中油直營光復北路站 | 鄰近交通 | |
---|
鄰近地標 | | 公園綠地 | |
---|
鄰近學區 | | 捷運站 | |
---|
房屋聯絡人資訊 |
聯絡人姓名 | 李小姐 (煩請告知聯絡人,您是在889房屋網看到這則廣告,真摯感恩您的幫忙) |
---|
手機 |  0986-508-652(李小姐) | 電子信箱 | lili19730209@gmail.com |
---|
Skype通話 | | Line加入好友 |
|
---|
所屬公司名稱 | 財欣不動產管理顧問有限公司/專業代標/合法經紀業者 |
---|
公司電話 | 聯絡電話:02-82602416 / 0986508652 | 公司傳真 | |
---|
公司地址 | 新北市土城區金城路二段396號11樓/桃園市莊敬路一段346號4樓 |
---|
網 址 | http://www.法拍屋代標推薦.tw |
---|