房屋資料 |
案名 | 蘆洲區中興街【三多利頂級花園名邸A區】近捷運三民高中站 | 案號 | 113蘭128475 114/10/16(四) 09:30 |
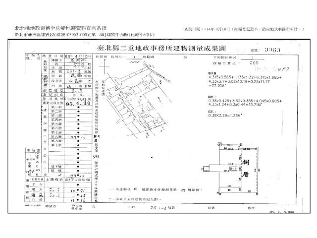
地址 | 新北市蘆洲區中興街29號8樓新北市蘆洲區中興街29號8樓 | 社區/大樓 | 三多利頂級花園名邸區 |
---|
最新交易狀態 | 待標中 | 售價 | 售1760萬 |
房屋類型 | 大樓 | 總登記坪數 | 33.74 坪 |
格局 | 0房 | 屋齡 | 29年 |
---|
每坪單價 | 52.16萬/坪 | 公設比 | |
---|
車位 | 沒有車位 | 座向 | |
---|
無障礙環境 | 有 | 法拍屋 | 本物件是法拍屋 拍次 : 第1拍 點交 開標日期 : 2025/10/16(四) 09:30
|
---|
建物所在樓層 | 8樓/共9樓 | 管理費 | |
---|
管委會 | 有 | 中庭 | 有 |
電梯 | 有 | 是否為凶宅 | |
300公尺內嫌惡設施 | | 面前道路 | |
面寬 | | 縱深 | |
邊間 | 不是 | 房屋銷售來源 | 不動產經紀人/專業仲介 |
---|
房屋特色 | 【法院筆錄內容】 1‧本件查封時,無人應門。經本院履勘,建物現由債務人兒子居住,其稱房屋因地震有部分磁磚掉落,也有部分漏水情形。本件拍定後點交。
2‧另依鑑價報告所載,本件標的經初步調查無海砂屋、輻射屋之情形,惟若有因調查限度難以查明,致與鑑價報告內容所載容有出入者,請應買人逕向相關單位洽詢查明,綜合考量相關風險再行投標。
3‧遺留於本件標的內之動產,因屋內動產並不在拍賣範圍內,如拍定後仍遺留有價值之遺留物在現場,本院尚須依強制執行法第100條之規定命拍定人保管遺留物、拍照、造具遺留物清冊陳報法院、限期債務人領回、鑑價、詢價、拍賣等,需耗費相當時日,請投標人注意,評估後再行投標。
4‧若有停止、撤回、撤銷、延緩強制執行之事由,而其事由確實發生於本案標的拍定日或拍定日前,縱已拍定,本院亦得撤銷拍定,無息返還已經繳交之款項,應買人、拍定人、債權人、債務人均不得異議,不同意之應買人請勿參與本件標的之應買。
5‧本件標的物原所有權人或使用人如有積欠工程受益費及水電、瓦斯或管理費等費用,應由拍定人自行查明後與相關單位洽商解決。
《給付管理費》
【保證金】
352萬 【拍賣履歴】
一拍2025/10/16底標價格1760萬
二拍底標價格1408萬
三拍底標價格1126.4萬
四拍底標價格901.1萬
【焦點法拍履歴】
👩🏻⚖️從業二十年以上經驗|競競業業|正派經營
🎯投標準備⇥法拍流程說明|標單填寫|案件現場勘查有無特殊情事|成本評估分析
💰銀行貸款⇥法拍物件估價|投標人財力評估|銀行代墊款協助辦理|最高八成
🏡拍定得標⇥強制執行書狀、履勘陳報書狀往返|債務人搬遷協商|遺留物造冊查估
🎁委託代標⇥免費|委託代標未得標⇥免費
🏢鑫創資產管理有限公司
顏麗杏0911-965339營業員證號:(101)登字第212862號
連真甄0909-031993營業員證號:(101)登字第192002號
更多物件☞焦點法拍
經紀人李彥槿:109北市經證字第02110號 |
---|
坪數說明 |
建物登記總坪數 | 33.74 | 土地登記總坪數 | 5.87 |
---|
主建物坪數 | 23.32 | 停車位坪數 | |
---|
附屬建物坪數 | 3.62 | 公共設施坪數 | 6.80 |
---|
增建坪數 | |
---|
周邊環境 |
生活機能 | | 鄰近交通 | |
---|
鄰近地標 | 近捷運三民高中站、蘆洲南北側重劃區、三民高中、蘆洲公園 | 公園綠地 | 蘆洲公園 |
---|
鄰近學區 | | 捷運站 | 三民高中 |
---|
房屋聯絡人資訊 |
聯絡人姓名 | 小顏 (煩請告知聯絡人,您是在889房屋網看到這則廣告,真摯感恩您的幫忙) |
---|
手機 |  0911-965-339(小顏) | 電子信箱 | leysen137@gmail.com |
---|
Skype通話 | | Line加入好友 |
|
---|
所屬公司名稱 | 鑫創資產管理有限公司 |
---|
公司電話 | | 公司傳真 | |
---|
公司地址 | 新北市新莊區中環路二段423號一樓 |
---|
網 址 | http://www.1314home.tw |
---|