房屋資料 |
案名 | 淡水區中山北路二段【川普寬庭】淡水行政中心、輕軌區公所站 | 案號 | 114實36893二114/10/15(三)14:30流標 |
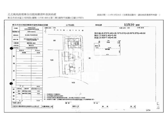
地址 | 新北市淡水區中山北路二段189巷15弄8號4樓新北市淡水區中山北路二段189巷15弄8號4樓 | 社區/大樓 | 川普寬庭 |
---|
最新交易狀態 | 議價中 | 售價 | 售1178萬 |
房屋類型 | 大樓 | 總登記坪數 | 39.68 坪 |
格局 | 0房 | 屋齡 | 9年 |
---|
每坪單價 | 29.69萬/坪 | 公設比 | |
---|
車位 | | 座向 | |
---|
無障礙環境 | 有 | 法拍屋 | 本物件是法拍屋 拍次 : 第1拍 部分點交 開標日期 : 2025/10/15 (三) 14:30流標
|
---|
建物所在樓層 | 4樓/共14樓 | 管理費 | |
---|
管委會 | 有 | 中庭 | |
電梯 | 有 | 是否為凶宅 | |
300公尺內嫌惡設施 | | 面前道路 | |
面寬 | | 縱深 | |
邊間 | 不是 | 房屋銷售來源 | 不動產經紀人/專業仲介 |
---|
房屋特色 | 【法院筆錄內容】 1‧11530建號(不含停車位)拍定後點交。
2‧民國114年5月13日現場查封時,據社區總幹事表示房屋及地下3層33號停車位均無人使用。停車位係拍賣共有部分,應由全體區分所有權人協議使用分管方法,故該部分不點交。惟現在實際情形如何,仍請應買人自行查明注意。
3‧投標人應自行查明債務人有無積欠管理費,並注意拍定後民法第826條之1第3項規定之適用問題。
《拍賣抵押物》
【保證金】
235.6萬 【拍賣履歴】
一拍2025/10/15流標底標價格1178萬
二拍底標價格942.4萬
三拍底標價格753.9萬
四拍底標價格603.1萬
【焦點法拍履歴】
👩🏻⚖️從業二十年以上經驗|競競業業|正派經營
🎯投標準備⇥法拍流程說明|標單填寫|案件現場勘查有無特殊情事|成本評估分析
💰銀行貸款⇥法拍物件估價|投標人財力評估|銀行代墊款協助辦理|最高八成
🏡拍定得標⇥強制執行書狀、履勘陳報書狀往返|債務人搬遷協商|遺留物造冊查估
🎁委託代標⇥免費|委託代標未得標⇥免費
🏢鑫創資產管理有限公司
顏麗杏0911-965339營業員證號:(101)登字第212862號
連真甄0909-031993營業員證號:(101)登字第192002號
更多物件☞焦點法拍
經紀人李彥槿:109北市經證字第02110號 |
---|
坪數說明 |
建物登記總坪數 | 39.68 | 土地登記總坪數 | 6.58 |
---|
主建物坪數 | 14.98 | 停車位坪數 | 12.99 |
---|
附屬建物坪數 | 3.14 | 公共設施坪數 | 8.57 |
---|
增建坪數 | |
---|
周邊環境 |
生活機能 | | 鄰近交通 | |
---|
鄰近地標 | 近輕軌淡水行政中心站、淡水行政中心、國民運動中心、新市鎮兒童公園、家樂福 | 公園綠地 | 淡水新市鎮兒童公園 |
---|
鄰近學區 | | 捷運站 | 淡水區公所 |
---|
房屋聯絡人資訊 |
聯絡人姓名 | 小顏 (煩請告知聯絡人,您是在889房屋網看到這則廣告,真摯感恩您的幫忙) |
---|
手機 |  0911-965-339(小顏) | 電子信箱 | leysen137@gmail.com |
---|
Skype通話 | | Line加入好友 |
|
---|
所屬公司名稱 | 鑫創資產管理有限公司 |
---|
公司電話 | | 公司傳真 | |
---|
公司地址 | 新北市新莊區中環路二段423號一樓 |
---|
網 址 | http://www.1314home.tw |
---|