新北板橋法拍公寓
首頁
│
台中房屋
│
台中房子
│
申請房仲網站
台中房屋出售
台中房屋出租
台中土地出售
台中土地出租
台中法拍屋
台中法拍地
台中房仲
台中房地產委託
關鍵字
現在位置:
首頁
>
新北法拍屋
>
板橋法拍屋
>
新北板橋法拍公寓-新北市板橋區民治街72號3樓
最後更新:59天前
檢舉不實
│
列印
│
物件留言
|
觀看地圖
新北板橋法拍公寓
新北板橋法拍公寓
房屋資料
案名
板橋區民治街|公寓三樓|近懷石公園、文聖國小
案號
114速19813 114/10/22(三) 14:30
地址
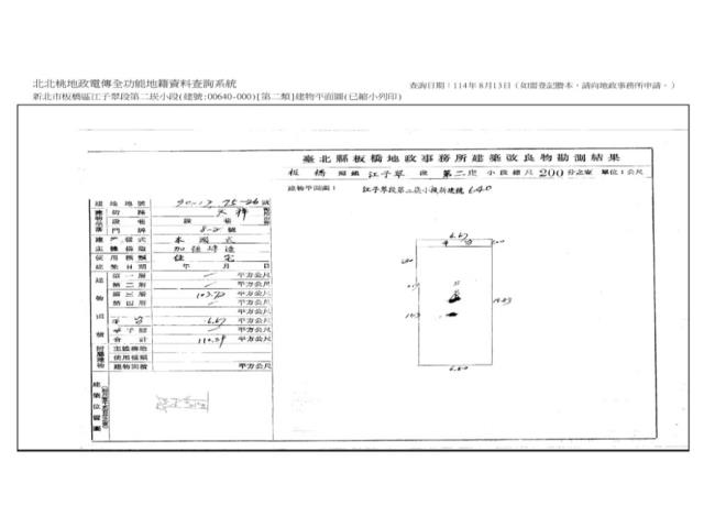
新北市板橋區民治街72號3樓
新北市板橋區民治街72號3樓
最新交易狀態
待標中
售價
售1965萬
售
1572萬
房屋類型
公寓
總登記坪數
33.39 坪
格局
0房
屋齡
50年以上
每坪單價
47.08萬/坪
公設比
車位
沒有車位
座向
無障礙環境
沒有
法拍屋
本物件是法拍屋
拍次 : 第2拍 點交
開標日期 : 2025/10/22(三) 14:30
建物所在樓層
3樓/共4樓
管理費
管委會
沒有
中庭
沒有
電梯
沒有
是否為凶宅
300公尺內嫌惡設施
面前道路
面寬
縱深
邊間
不是
房屋銷售來源
不動產經紀人/專業仲介
房屋特色
【法院筆錄內容】
1‧拍賣標的經本院現場查封履勘時,債務人李O芳在場表示:建物由債務人簡O梅與其共同居住,並無出租、增建等情。本件除應有部分於拍定後不點交外,建物於拍定後點交。
2‧本件標的經函詢新北市政府工務局,該局表示截至114年4月9日止,新北市海砂屋申請報備案件清冊中尚無本件標的之申請資料,故本件標的是否為海砂屋,建請洽專業機構人員辦理相關鑑定為宜,特別請應買人自行查明注意。
3‧關於海砂屋及輻射屋之判定、建物是否受地震受創、火災受損、嚴重漏水,均須由相關權利人請相關單位鑑定,另建物是否有非自然死亡之情形,其實際情形亦須由相關權利人查詢當地管轄派出所,並以專業鑑定機構及相關公部門發佈為主。是本註記僅供參考,並請應買人於投標或應買前均自行查明確認上情,再為投標或應買。
4‧本件標的物原所有權人或使用人如有積欠工程受益費、水電、瓦斯、管理費等相關費用,應由拍定人自行查明後與相關單位洽商解決。
5‧本件標的土地如經地政機關實施重測或其他行為致面積增減,因該重測並無增減私權效力,是重測前後土地之同一性及其實體私權關係並未變更,其面積以重測結果為準,拍定後債權人、債務人、拍定人或其他利害關係人均不得以面積增減請求增減價金或撤銷拍定。
6‧本件若於拍定前,已有債權人之撤回狀送達本院而生撤回效力或有其他應停止執行之裁定,惟因公文遞送流程之故無法即時審查,本院仍得於拍定後撤銷拍定,保證金無息退還,拍定人不得異議。
7‧刊登於網站之公告內容如與本院公告欄張貼之公告內容不符時,一律以本院公告欄張貼之拍賣公告內容為準。
《清償票款》
【保證金】
314.4萬
【拍賣履歴】
一拍2025/09/24流標底標價格1965萬
二拍2025/10/22底標價格1572萬
三拍底標價格1257.2萬
四拍底標價格1006.1萬
【焦點法拍履歴】
👩🏻⚖️從業二十年以上經驗|競競業業|正派經營
🎯投標準備⇥法拍流程說明|標單填寫|案件現場勘查有無特殊情事|成本評估分析
💰銀行貸款⇥法拍物件估價|投標人財力評估|銀行代墊款協助辦理|最高八成
🏡拍定得標⇥強制執行書狀、履勘陳報書狀往返|債務人搬遷協商|遺留物造冊查估
🎁委託代標⇥免費|委託代標未得標⇥免費
🏢鑫創資產管理有限公司
顏麗杏0911-965339營業員證號:(101)登字第212862號
連真甄0909-031993營業員證號:(101)登字第192002號
更多物件☞焦點法拍
經紀人李彥槿:109北市經證字第02110號
坪數說明
建物登記總坪數
33.39
土地登記總坪數
12.25
主建物坪數
31.37
停車位坪數
附屬建物坪數
2.02
公共設施坪數
增建坪數
周邊環境
生活機能
鄰近交通
鄰近地標
捷運江子翠站、江翠重劃區、華江橋、華江河濱公園
公園綠地
鄰近學區
捷運站
江子翠
房屋聯絡人資訊
聯絡人姓名
小顏
(煩請告知聯絡人,您是在889房屋網看到這則廣告,真摯感恩您的幫忙)
手機
0911-965-339(小顏)
電子信箱
leysen137@gmail.com
Skype通話
Line加入好友
所屬公司名稱
鑫創資產管理有限公司
公司電話
公司傳真
公司地址
新北市新莊區中環路二段423號一樓
網 址
http://www.1314home.tw
贊助商廣告
新北板橋法拍公寓
板橋拍賣公寓-1
板橋拍賣公寓-2
板橋拍賣公寓-3
板橋拍賣公寓-4
板橋拍賣公寓-5
板橋拍賣公寓-6
板橋拍賣公寓-7
板橋拍賣公寓-8
板橋拍賣公寓-9
板橋拍賣公寓-10
觀看地圖
到Google查看地圖
到Google查看街景
黃金熱銷物件
三重仁愛街480號
公寓
26.02 坪
售1406萬
淡水民權路187巷
公寓
41.73 坪
售937萬
三重長樂街172號
公寓
13.61 坪
售529萬
鶯歌育才街88號5
公寓
32.59 坪
售410萬
相似物件
三重仁愛街480號
公寓/3房
26.02 坪
售1757萬
板橋國光路199號
公寓/0房
29.81 坪
售1540萬
永和雙和街52巷1
公寓/0房
43.44 坪
售1753萬6000元
中和華新街7號3樓
公寓/3房
30.55 坪
售1541萬
物件留言
請注意,如果您詢問的內容與物件不相符合或是廣告,經過審核,系統將會直接刪除您的發問內容
檢舉不實
板橋法拍華廈
│
板橋法拍電梯大廈
│
板橋法拍電梯大樓
│
板橋法拍大樓
│
板橋法拍大廈
│
板橋法拍電梯華廈
│
板橋法拍透天
│
板橋法拍透天厝
│
板橋法拍透天別墅
│
板橋法拍透天店面
│
板橋法拍大樓店面
│
板橋法拍公寓
│
板橋法拍店面
│
板橋法拍套房
│
板橋法拍辦公室
│
板橋法拍豪宅
│
板橋法拍樓中樓
│
板橋法拍農舍
│
板橋法拍國宅
│
板橋法拍辦公大樓
│
板橋法拍別墅
│
板橋法拍電梯別墅
│
板橋法拍廠房
│
板橋法拍廠辦
│
板橋法拍工業廠房
│
板橋法拍中古屋
│
板橋法拍新成屋
│
板橋法拍成屋
│
板橋法拍電梯透天
│
板橋法拍仲介
│
板橋法拍房仲
│
●電話:07-7963288 ●電子信箱:
服務信箱
本網站保留一切權利,非經正式書面同意,禁止轉貼節錄。建議瀏覽解析度1024*768。
資料處理中,請稍後...
請注意:此案件已下架