房屋資料
案名 新店區|秀岡二街|法拍屋|獨棟透天別墅含車位 案號 四拍【113辰59571】
地址 新北市新店區秀岡二街107號3層樓獨棟透天別墅,法拍屋代標 專線0913-303663 +LINE社區/大樓秀岡山莊陽光特區
最新交易狀態待標中售價
售3861萬3090萬
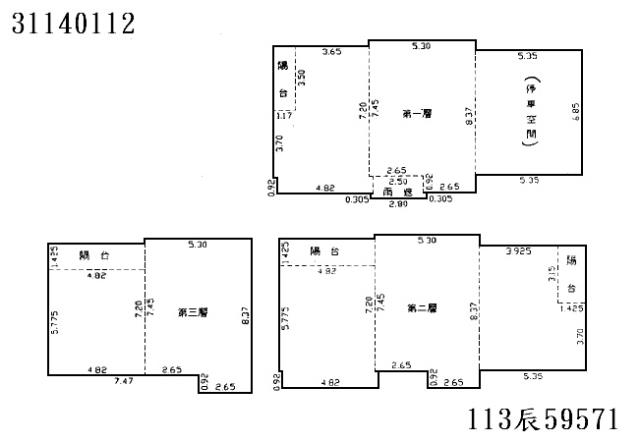
房屋類型 透天_別墅_獅仔頭山風景區 總登記坪數 95.34 坪
格局5房,3廳,3衛,3陽台,1廚房屋齡23年
每坪單價32.41萬/坪公設比
車位室內車庫座向
無障礙環境法拍屋 本物件是法拍屋
拍次 : 四拍
開標日期 : 114/11/18(二)
建物所在樓層3層樓獨棟透天管理費約8600/月
管委會中庭
電梯 未知 是否為凶宅 不是
300公尺內嫌惡設施 面前道路
面寬 縱深
邊間房屋銷售來源不動產經紀人/專業仲介
房屋特色
♛一零四法拍網(創立40週年)業界最大/專業團隊/全省服務/值得託付~

♠︎專業代標『吳先生』全程為您服務♠︎代標專線☎0913303663點入+line

💥💥💥刊登內容以公告機關為準請投標人注意🔥🔥🔥

法院筆錄:●點交情形→如備註或使用情形欄所示●

1‧依陽光社區總幹事陳○興稱,本件拍賣標的無人居住使用,106地號為新店區秀岡二街陽光社區內之道路,其範圍為秀岡二街137號至125號前方、69號至79號前方,及95號至107號前方;嗣新北市政府警察局113年6月20日函復經查訪,有不願具名之保全人員稱有一名男性居住,惟與本院113年4月24日查封履勘時之狀況不符,以本院查封履勘時之狀況為準;依經濟部水利署臺北水源特地區管理分署113年4月3日水臺建字第11353014220號函覆,106地號土地領有本署核發之89水建字第021建造執照及91北水使第007號使用執照;依新北市新店地政事務所113年4月2日新北店地登字第1136075678號函,本件拍賣之82地號、106地號土地皆為本件拍賣之20建號建物之建築基地。土地使用分區均為第一種住宅區。

2‧本件拍賣標的經向主管機關查詢有無海砂屋、輻射屋、地震或火災受創及建物內有非自然死亡等足以影響交易之特殊情事,經新北市政府消防局113年5月1日新北消指字第1130833939號函覆,自106年1月1日至113年4月30日止無受理旨揭地址火災案件紀錄;經臺北市政府警察局大安分局113年6月20日函覆,未發現有非自然死亡情事;經查行政院核能安全委員會網站所公告,所有已發現的放射性污染建築物(通稱輻射屋)均為民國71年至73年建造之建物,其使用執照核發日期在71年11月至75年1月間,本件建築物完成日期為91年7月31日非屬前揭公告區間,故核能安全委員會並無進行輻射普查,如有輻射偵測之需要,可洽請經核能安全委員會認可之「合格輻射防護偵測業者」,進行自費檢測,拍定後不得請求撤銷拍定,請應買人注意;經新北市政府工務局113年5月8日新北工建字第1130833909號函覆,非該處列管之海砂屋或震損建築物。另債權人債務人若有影響交易之情事,應檢附相關文件到院以利發布公告。依強制執行法第69條之規定,拍賣物買受人就物之瑕疵無擔保請求權,請應買人自行查明,不得於拍定後主張。

3‧依新北市新店地政事務所113年4月2日新北店地登字第1136075678號函所載,關於外國人取得本件拍賣標的不動產之限制,需循「新北市政府地政局受理外國人申請標購資格標準作業程序」先向新北市政府地政局申請標購資格證明,經審核得移轉並發給資格證明者,拍定人即可持本院執行處核發之權利移轉證明書辦理登記。是以,若係外國人投標,需檢附經新北市政府地政局核准之標購資格證明文件於投標書。

4‧本件拍定後點交。

《拍賣抵押物》

[他項權利:拍後塗銷]

[謄本]:總坪數95.34坪[主建坪87.64坪,附屬坪7.70坪][住宅停車空間/住家用]

⚖️拍賣機關公告

📣司法院法拍屋公告📣國有財產署標售不動產資訊📣台灣金服含未辦繼承法拍物件

📣法拍屋拍定價公告📣法務部行政執行署法拍物件📣產權清楚☆強制執行法【77條”81條】

🔎法拍一點不燒腦~~眉角全都在這邊~~懶人包裡報您知~~

🤑🤑買法拍指定一零四🤝手把手當您好幫手📣【可免費試聽喔~】

💎法拍入門課程💎最強師資陣容💎豐富閱歷傳授💎專業團隊開講

⏳法拍屋代標流程~~

㊮銀行代墊尾款:(最高可貸八成)✍現場合理價格評估

🎯得標協助辦理過戶⌚點交全程不用陪同

☺和諧交付等您入住🙅‍♂️未得標不收取費用

🀄法拍代標找專業~💯投標必中下決心~✈️過了這村沒那店~$別讓資金睡著了💤

📣法拍屋拍定價公告📣📣法拍屋產權清楚☆強制執行法【77條”81條】

❤誠摯讓您感受最優質的代標全程服務

自備2成輕鬆成家~特約銀行核撥快速~只有買方安心選購~彈性出價理財首選~

❦免費諮詢可+line❦消除疑慮再委託❦收費契約最透明

❦❦❦❦❦❦❦❦❦❦❦❦❦❦❦❦❦❦❦❦❦❦❦❦❦❦❦❦❦❦❦❦❦❦❦❦

雙北助理專線☎02-22650614桃園助理專線☎03-3293994全省☎0913303663

🏘️經紀業:財欣不動產管理顧問有限公司統一編號:22857204

✍經紀人:(97)年北市經證字001562號

💼營業員:(98)登字第133601號

📣📣104法拍網/透明房訊/法拍屋,土地全省最新拍賣資訊

📣台北法拍屋快搜📣新北法拍屋快搜📣桃園法拍屋快搜📣台中法拍屋快搜

♠北區熱門法拍屋♠北區法拍屋精選♠樂屋網

❦❦❦❦❦❦❦❦❦❦❦❦❦❦❦❦❦❦❦❦❦❦❦❦❦❦❦❦❦❦❦❦❦❦❦❦

生活e點通~

📣財政部新青安成家📣全國地政電子謄本系統📣地籍圖便民服務📣房地合一專區

📣台北捷運路線圖📣新北捷運路線圖📣桃園捷運路線圖📣台中捷運路線圖
坪數說明
建物登記總坪數95.34土地登記總坪數127.22
主建物坪數87.64停車位坪數
附屬建物坪數7.70公共設施坪數
增建坪數
周邊環境
生活機能聰明公園,獅仔頭山風景區,新店獅仔頭山登山步道,磺窟溪,區內設置康橋國際雙語學校,擁有三面環山、一面帶水的優美景觀,且社區內保留了許多原生樹木和植栽,秀岡山莊對外的聯絡橋樑秀岡橋鄰近交通約182戶獨棟別墅,獨棟RC結構,地上3層+地下,前後庭院,秀岡二街為核心,社區內道路貫通,社區巴士,幸福巴士,輕軌陽光運動公園站步程可達,走國道與捷運約15–20分鐘,休閒設施,原始山林景觀,秀岡橋,私人庭院,鄰近陽光運動園區,管理費約8,600月以坪數分攤,24小時保全,垃圾清運等,格局坪數4–5房,60–90坪建物,100–130坪地坪,均為獨棟
鄰近地標公園綠地
鄰近學區捷運站
房屋聯絡人資訊
聯絡人姓名吳先生
(煩請告知聯絡人,您是在889房屋網看到這則廣告,真摯感恩您的幫忙)
手機
0913-303-663(吳先生)
電子信箱dlw1944@yahoo.com.tw
Skype通話 Line加入好友 Line加入好友
所屬公司名稱財欣不動產管理顧問有限公司/專業代標/營業員(97)經證字號001562
公司電話法拍屋代標服務 吳先生 0913303663 02-22650614 03-3293994公司傳真02-22740884 03-3343929
公司地址新北市土城區金城路二段396號11樓/桃園市莊敬路一段346號4樓/統編:22857204
網 址http://www.法拍屋代標服務.tw

贊助商廣告
新北新店法拍透天
新北新店透天法拍-1
新北新店透天法拍-1
新北新店透天法拍-2
新北新店透天法拍-2
新北新店透天法拍-3
新北新店透天法拍-3
新北新店透天法拍-4
新北新店透天法拍-4
新北新店透天法拍-5
新北新店透天法拍-5
黃金熱銷物件
相似物件

物件留言
請注意,如果您詢問的內容與物件不相符合或是廣告,經過審核,系統將會直接刪除您的發問內容
等待圖示
檢舉不實
等待圖示
●電話:07-7963288  ●電子信箱:服務信箱

本網站保留一切權利,非經正式書面同意,禁止轉貼節錄。建議瀏覽解析度1024*768。