新北市淡水法拍公寓
首頁
│
台中房屋
│
台中房子
│
申請房仲網站
台中房屋出售
台中房屋出租
台中土地出售
台中土地出租
台中法拍屋
台中法拍地
台中房仲
台中房地產委託
關鍵字
現在位置:
首頁
>
新北法拍屋
>
淡水法拍屋
>
新北市淡水法拍公寓-新北市淡水區淡金路三段46巷22號4樓
最後更新:15天前
檢舉不實
│
列印
│
物件留言
|
觀看地圖
新北市淡水法拍公寓
新北市淡水法拍公寓
房屋資料
案名
淡水區淡金路|公寓四樓|近淡海新市鎮
案號
113高104448 114/10/23 (四) 10:30
地址
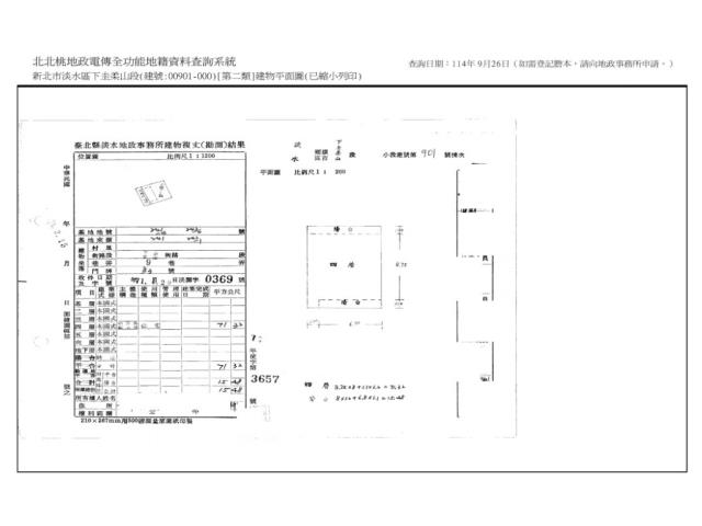
新北市淡水區淡金路三段46巷22號4樓
新北市淡水區淡金路三段46巷22號4樓
最新交易狀態
待標中
售價
售
426萬
房屋類型
公寓
總登記坪數
26.25 坪
格局
0房
屋齡
44年
每坪單價
16.23萬/坪
公設比
車位
沒有車位
座向
無障礙環境
沒有
法拍屋
本物件是法拍屋
拍次 : 第1拍 點交
開標日期 : 2025/10/23 (四) 10:30
建物所在樓層
4樓/共4樓
管理費
管委會
沒有
中庭
沒有
電梯
沒有
是否為凶宅
300公尺內嫌惡設施
面前道路
面寬
縱深
邊間
不是
房屋銷售來源
不動產經紀人/專業仲介
房屋特色
【法院筆錄內容】
1‧901建號拍定後點交。
2‧民國114年2月17日現場執行時,經開鎖入內檢視為空屋,已斷水斷電,四周牆面因嚴重漏水均已剝落,天花板及樑柱有部分鋼筋裸露情形。拍賣標的經查相關主管機關後,並無發生非自然死亡情形,亦無發生過火災事件,亦非屬列管之海砂屋、地震受損屋。依強制執行法第113條準用第69條之規定,拍賣物買受人就物之瑕疵無擔保請求權,不得於拍定後主張,請應買人留意。惟現在實際情形如何,仍請應買人自行查明注意。
3‧投標人應自行查明債務人有無積欠管理費,並注意拍定後民法第826條之1第3項規定之適用問題。
《拍賣抵押物》
【保證金】
85.2萬
【拍賣履歴】
一拍2025/10/23底標價格426萬
二拍底標價格340.8萬
三拍底標價格272.6萬
四拍底標價格218.1萬
【焦點法拍履歴】
👩🏻⚖️從業二十年以上經驗|競競業業|正派經營
🎯投標準備⇥法拍流程說明|標單填寫|案件現場勘查有無特殊情事|成本評估分析
💰銀行貸款⇥法拍物件估價|投標人財力評估|銀行代墊款協助辦理|最高八成
🏡拍定得標⇥強制執行書狀、履勘陳報書狀往返|債務人搬遷協商|遺留物造冊查估
🎁委託代標⇥免費|委託代標未得標⇥免費
🏢鑫創資產管理有限公司
顏麗杏0911-965339營業員證號:(101)登字第212862號
連真甄0909-031993營業員證號:(101)登字第192002號
更多物件☞焦點法拍
經紀人李彥槿:109北市經證字第02110號
坪數說明
建物登記總坪數
26.25
土地登記總坪數
10.4
主建物坪數
21.57
停車位坪數
附屬建物坪數
4.68
公共設施坪數
增建坪數
周邊環境
生活機能
鄰近交通
鄰近地標
近淡海新市鎮
公園綠地
鄰近學區
捷運站
房屋聯絡人資訊
聯絡人姓名
小顏
(煩請告知聯絡人,您是在889房屋網看到這則廣告,真摯感恩您的幫忙)
手機
0911-965-339(小顏)
電子信箱
leysen137@gmail.com
Skype通話
Line加入好友
所屬公司名稱
鑫創資產管理有限公司
公司電話
公司傳真
公司地址
新北市新莊區中環路二段423號一樓
網 址
http://www.1314home.tw
贊助商廣告
新北市淡水法拍公寓
淡水公寓法拍-1
淡水公寓法拍-2
淡水公寓法拍-3
淡水公寓法拍-4
淡水公寓法拍-5
淡水公寓法拍-6
淡水公寓法拍-7
淡水公寓法拍-8
淡水公寓法拍-9
淡水公寓法拍-10
淡水公寓法拍-11
觀看地圖
到Google查看地圖
到Google查看街景
黃金熱銷物件
板橋民治街72號3
公寓
33.39 坪
售1572萬
蘆洲長安街131巷
公寓
39.66 坪
售2095萬
新莊豐年街124巷
公寓
22.28 坪
售800萬
淡水民權路187巷
公寓
41.73 坪
售937萬
相似物件
淡水淡金路三段46
公寓/0房
26.25 坪
售426萬
淡水淡金路三段46
公寓/3房
26.26 坪
售426萬
鶯歌育才街88號5
公寓/0房
32.59 坪
售410萬
鶯歌鳳吉二街52號
公寓/0房
23.54 坪
售435萬2000元
新店安祥路106巷
公寓/2房
24.58 坪
售409萬7000元
物件留言
請注意,如果您詢問的內容與物件不相符合或是廣告,經過審核,系統將會直接刪除您的發問內容
檢舉不實
淡水法拍華廈
│
淡水法拍電梯大廈
│
淡水法拍電梯大樓
│
淡水法拍大樓
│
淡水法拍大廈
│
淡水法拍電梯華廈
│
淡水法拍透天
│
淡水法拍透天厝
│
淡水法拍透天別墅
│
淡水法拍透天店面
│
淡水法拍大樓店面
│
淡水法拍公寓
│
淡水法拍店面
│
淡水法拍套房
│
淡水法拍辦公室
│
淡水法拍豪宅
│
淡水法拍樓中樓
│
淡水法拍農舍
│
淡水法拍國宅
│
淡水法拍辦公大樓
│
淡水法拍別墅
│
淡水法拍電梯別墅
│
淡水法拍廠房
│
淡水法拍廠辦
│
淡水法拍工業廠房
│
淡水法拍中古屋
│
淡水法拍新成屋
│
淡水法拍成屋
│
淡水法拍電梯透天
│
淡水法拍仲介
│
淡水法拍房仲
│
●電話:07-7963288 ●電子信箱:
服務信箱
本網站保留一切權利,非經正式書面同意,禁止轉貼節錄。建議瀏覽解析度1024*768。
資料處理中,請稍後...
請注意:此案件已下架