房屋資料
案名 三重區環河北路三段【 天闊】住家大樓 案號 113霄99344
地址 新北市三重區環河北路三段526號7樓<15>社區/大樓天闊
最新交易狀態待標中售價
售4100萬3800萬
房屋類型 大樓 總登記坪數 54.26 坪
格局屋齡16年
每坪單價70.03萬/坪公設比
車位停車位編號001-174座向
無障礙環境法拍屋 本物件是法拍屋
拍次 : 第二拍
開標日期 : 114/10/13
建物所在樓層7樓/共15樓管理費
管委會中庭
電梯 未知 是否為凶宅
300公尺內嫌惡設施 面前道路
面寬 縱深
邊間房屋銷售來源不動產經紀人/專業仲介
房屋特色

▲拍賣公告:新北法院
▲拍賣標的物:新北市三重區環河北路三段526號7樓<15>
▲【謄本資料】:
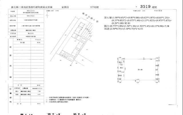
建物登記:總坪數54.26坪主建坪25.05坪,附屬坪4.27坪,停車坪11.60坪,公設坪13.34坪
▲【法院筆錄】:
本件建物拍定後點交
▲【生活機能】:
▲【拍次說明】:
標售拍次(目前拍次底價):
第一拍底價:4100萬
第二拍底價:3280萬
第三拍底價:
拍賣日期:114/10/13
▲台北∣新北∣桃園∣新竹
★Houseinfo:http://www.xn--ogt54mdnjqrqpix.tw/
▲【代標服務】
<過濾案件>追蹤拍賣日期...
<評估案件>投標全場陪同及標價最後建議...
<包辦交屋>與法院協商現住人交屋事項...
<代墊尾款>辦理銀行代墊及投標尾款手續...

※此案件為法拍屋無法看屋,實際狀況以法院筆錄為主。
詳細資訊了解請撥李小姐(02)8260-2416|0986-508652
一零四法拍網股份有限公司財欣不動產管理顧份有限公司
坪數說明
建物登記總坪數54.26土地登記總坪數
主建物坪數25.05停車位坪數11.60
附屬建物坪數4.27公共設施坪數13.34
增建坪數
周邊環境
生活機能鄰近交通
鄰近地標公園綠地
鄰近學區捷運站
房屋聯絡人資訊
聯絡人姓名李小姐
(煩請告知聯絡人,您是在889房屋網看到這則廣告,真摯感恩您的幫忙)
手機
0986-508-652(李小姐)
電子信箱lili19730209@gmail.com
Skype通話 Line加入好友 Line加入好友
所屬公司名稱財欣不動產管理顧問有限公司/專業代標/合法經紀業者
公司電話聯絡電話:02-82602416 / 0986508652公司傳真
公司地址新北市土城區金城路二段396號11樓/桃園市莊敬路一段346號4樓
網 址http://www.法拍屋代標推薦.tw

贊助商廣告
新北三重法拍大樓
新北拍賣大樓-1
新北拍賣大樓-1
新北拍賣大樓-2
新北拍賣大樓-2
新北拍賣大樓-3
新北拍賣大樓-3
新北拍賣大樓-4
新北拍賣大樓-4
新北拍賣大樓-5
新北拍賣大樓-5
觀看地圖
黃金熱銷物件
相似物件

物件留言
請注意,如果您詢問的內容與物件不相符合或是廣告,經過審核,系統將會直接刪除您的發問內容
等待圖示
檢舉不實
等待圖示
●電話:07-7963288  ●電子信箱:服務信箱

本網站保留一切權利,非經正式書面同意,禁止轉貼節錄。建議瀏覽解析度1024*768。